










2-комнатная квартира: Екатеринбург, улица 8 Марта, 188 (63 м²)
Продается просторная 2-комнатная квартира от собственника у метро Чкаловская — Заезжай и живи!
Продается светлая, теплая двухкомнатная квартира в одном из лучших жилых комплексов района построенным Атомстройкомплексом.
О КВАРТИРЕ:
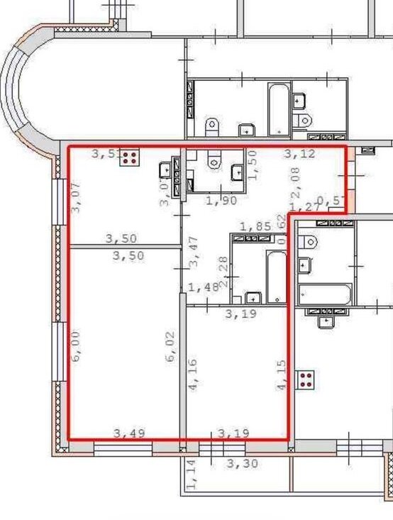
• Планировка: Изолированные спальня и гостиная, просторная кухня, два санузла, функциональная прихожая со встроенным шкафом-купе.
• Особенность: Панорамное остекление балкона с отличным видом.
• Наполнение: Квартира полностью укомплектована. Покупателю остается кухонный гарнитур с техникой, мебель в жилых комнатах, оснащение санузлов.
• Состояние: Объект освобожден и готов к заселению.
ДОМ И СЕРВИС:
• Закрытый охраняемый двор с видеонаблюдением и консьерж-сервисом.
• 4 скоростных лифта — отсутствие очередей даже в часы пик.
• Благоустроенная территория: детские и спортивные площадки, включая отдельную зону для малышей.
• Паркинг: Наземный во дворе и на крыше стилобата.
• Низкие коммунальные платежи, ответственная управляющая компания.
ИНФРАСТРУКТУРА — «ВСЁ ПОД РУКОЙ»:
• Транспорт: 3 минуты до ст. метро «Чкаловская», остановки всех видов транспорта.
• Образование: Прямо напротив — Французская гимназия №39 и школа №18. В шаговой доступности лицей №3 и школа №102, ДЮСШ, детские сады.
• Досуг и покупки: ТЦ «Мегаполис», магазины, рестораны, аптеки и фитнес-залы расположены прямо в стилобате дома и вокруг него.
ЮРИДИЧЕСКАЯ ЧИСТОТА:
• Без обременений и «детских долей».
• Собственность с момента постройки, квартира куплена у застройщика «Атомстройкомплекс» (один взрослый собственник с 2016 г.).
• Документы готовы к сделке. Возможен быстрый выход на подписание.
• Приветствуем работу с вашим риелтором или юристом.
Звоните и записывайтесь на просмотр! Ваша идеальная квартира ждет вас.
Особенности
Другие 2-х комнатные квартиры
2-к кв. Свердловская область, Екатеринбург ул. Свердлова, 27 (56.7 м²)
Последние добавленные апартаменты
1-к кв. Свердловская область, Екатеринбург ул. 40-летия Комсомола, 35/3 (34.0 м²)
1-к кв. Свердловская область, Екатеринбург ул. Ангарская, 50А (45.0 м²)
О нас говорят
Хорошая услуга «Личный помощник». За вами закрепляют менеджера, который подбирает для вас варианты, помогает с подписанием договора и проверкой квартиры. Константин оперативно отвечал на наши вопросы и подстраивался под возникающие в ходе поиска требования.
Ins Fairy
Нашел себе отличную квартиру в Мск на Локалс. В этот раз пользовался услугой Личный помощник; Каждый день мне присылали варианты и по моим ответам уточняли мои критерии. В итоге выбрали прямо то, что мне было надо!
Ilya Malov
Отличный сервис! Нужный вариант подобрали уже на следующий день после обращения. Документы с арендодателем я подписала в конце той же недели и сразу переехала. Квартира после ремонта, все новое, я — первый арендатор, до метро 15 минут пешком. Это потрясающе!
Maria Levkina
Поиски квартиры заняли ровно неделю, Андрей проверял все варианты и составлял подробное описание. Так же оказал помощь при подписании договора. И вот теперь, я снимаю квартиру без комиссии, от собственника, с хорошим ремонтом, в новом доме по приемлемой цене.
Dmitry Kovtun
Клиентоориентированность — на высшем уровне. И форма связи любая.. мне было удобно общаться через почту — не проблема: в будни и даже в выходные, и днем и ночью — постоянно на связи) В какой-то момент даже подумала, что личный помощник никогда не отдыхает))
Teresa Olehnovich
Услуга «Личный помощник» — это не только дешевле, чем платить деньги каким-то непонятным посредникам или риэлторам, но и гарантированная ежедневная консультация от грамотного специалиста. Одним словом, всё очень понравилось.
Алина Василевская
Моя оценка 5! Нашли с личным помощником то, что нужно!! Удобно и безопасно. Отличный, проверенный сайт! Спасибо, Локалс!
Еленка Потапова
Искал с помощью услуги «Личный помощник». Сервис справился с поставленной перед ним задачей — найти мне жильё в короткие сроки (дедлайн 1,5 недели). Спасибо!
Dimas
У меня только положительные впечатления остались. Мне присылал варианты каждый день, иногда даже дважды. Всегда оперативно реагировал на мои пожелания. В итоге, так и сняли одну из предложенных квартир и очень довольны.
Любовь












