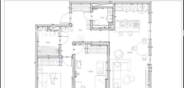
3-к кв. Свердловская область, Екатеринбург ул. Стрелочников, 8А (70.6 м²)
Предлагаемая квартира отличается продуманностью пространства и высоким уровнем комфорта. Три комнаты включают детскую комнату, спальню и просторную кухню-гостиную, где легко разместится вся семья и гости. Два санузла оснащены фирменной сантехникой(Geberit,Grohe и т.д.)
Особенностью интерьера являются встроенные системы хранения, позволяющие рационально организовать пространство и поддерживать порядок. Кухонный остров служит не только рабочей зоной, но и местом для семейных завтраков и ужинов. Современная бытовая техника, включающая кондиционер, духовой шкаф, посудомоечную машину и вытяжку, значительно упрощает ведение домашнего хозяйства.
Большой плюс квартиры — наличие просторного балкона, который может стать уютным уголком для отдыха или дополнительным пространством для творчества и хобби. Стильный и практичный ремонт выполнен с использованием высококачественных материалов (широкоформатный керамогранит с эпоксидной затиркой, качественные меж.комнатные двери, в спальне настоящий штучный паркет) обеспечивающие долговечность и эстетику.
Отдельно стоит отметить теплые полы в сан.узлах и прихожей, гарантирующие комфорт даже в холодное время года. В жаркое время выручит кондиционер. Эта квартира станет идеальным выбором для тех, кто ценит комфорт, функциональность и качество жилья.
По техническим есть много приятных моментов.Расскажу, покажу при встрече.
Отдельно могу продать лучшее парковочное место в этом доме.
Я собственник. Быстрый выход на сделку. Риэлторам без клиентов просьба не беспокоить.
Особенности
Другие 3-х комнатные квартиры
3-к кв. Свердловская область, Екатеринбург ул. Смазчиков, 3 (102.5 м²)
3-к кв. Свердловская область, Екатеринбург ул. Советская, 64 (68.3 м²)
3-к кв. Свердловская область, Екатеринбург просп. Космонавтов, 11А (70.9 м²)
3-к кв. Свердловская область, Екатеринбург ул. Менделеева, 18 (89.0 м²)
Последние добавленные апартаменты
1-комнатная квартира: Екатеринбург, улица Старых Большевиков, 56 (29.5 м²)
Студия Свердловская область, Екатеринбург ул. Зеленый Остров, 14 (23.0 м²)
1-к кв. Свердловская область, Екатеринбург пер. Полимерный, 13 (40.0 м²)
О нас говорят
Хорошая услуга «Личный помощник». За вами закрепляют менеджера, который подбирает для вас варианты, помогает с подписанием договора и проверкой квартиры. Константин оперативно отвечал на наши вопросы и подстраивался под возникающие в ходе поиска требования.
Ins Fairy
Нашел себе отличную квартиру в Мск на Локалс. В этот раз пользовался услугой Личный помощник; Каждый день мне присылали варианты и по моим ответам уточняли мои критерии. В итоге выбрали прямо то, что мне было надо!
Ilya Malov
Отличный сервис! Нужный вариант подобрали уже на следующий день после обращения. Документы с арендодателем я подписала в конце той же недели и сразу переехала. Квартира после ремонта, все новое, я — первый арендатор, до метро 15 минут пешком. Это потрясающе!
Maria Levkina
Поиски квартиры заняли ровно неделю, Андрей проверял все варианты и составлял подробное описание. Так же оказал помощь при подписании договора. И вот теперь, я снимаю квартиру без комиссии, от собственника, с хорошим ремонтом, в новом доме по приемлемой цене.
Dmitry Kovtun
Клиентоориентированность — на высшем уровне. И форма связи любая.. мне было удобно общаться через почту — не проблема: в будни и даже в выходные, и днем и ночью — постоянно на связи) В какой-то момент даже подумала, что личный помощник никогда не отдыхает))
Teresa Olehnovich
Услуга «Личный помощник» — это не только дешевле, чем платить деньги каким-то непонятным посредникам или риэлторам, но и гарантированная ежедневная консультация от грамотного специалиста. Одним словом, всё очень понравилось.
Алина Василевская
Моя оценка 5! Нашли с личным помощником то, что нужно!! Удобно и безопасно. Отличный, проверенный сайт! Спасибо, Локалс!
Еленка Потапова
Искал с помощью услуги «Личный помощник». Сервис справился с поставленной перед ним задачей — найти мне жильё в короткие сроки (дедлайн 1,5 недели). Спасибо!
Dimas
У меня только положительные впечатления остались. Мне присылал варианты каждый день, иногда даже дважды. Всегда оперативно реагировал на мои пожелания. В итоге, так и сняли одну из предложенных квартир и очень довольны.
Любовь












